Marketing Remarks
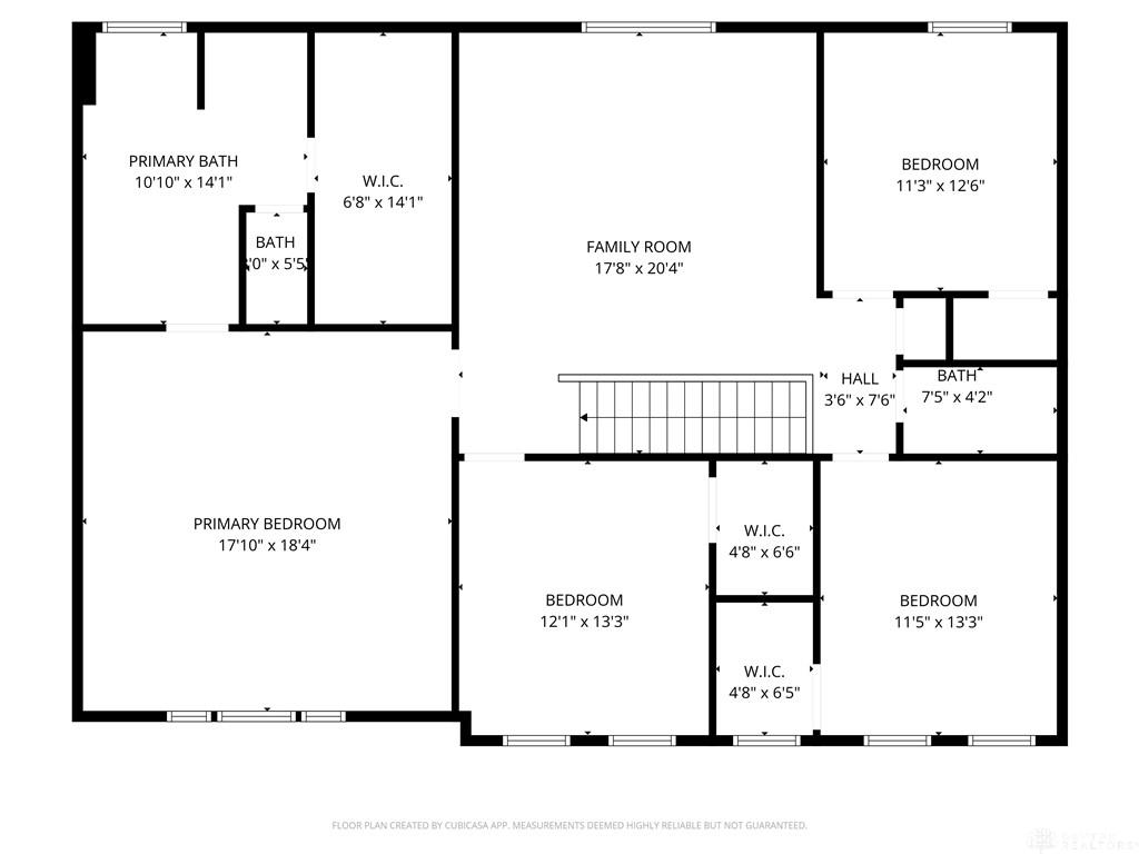
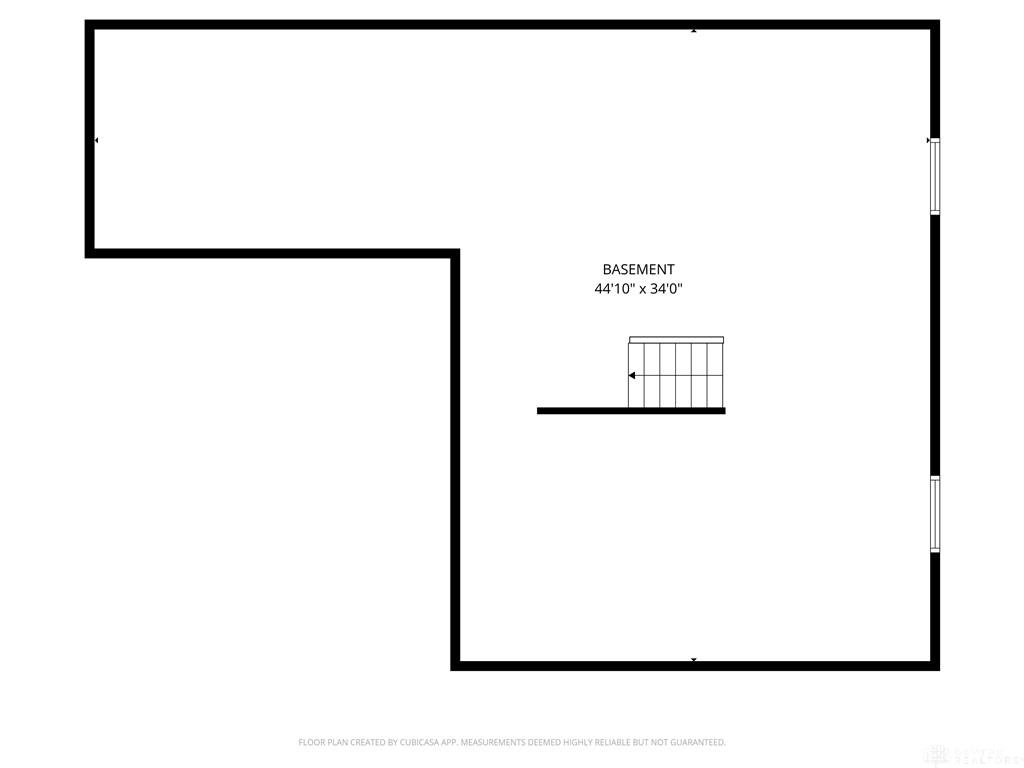
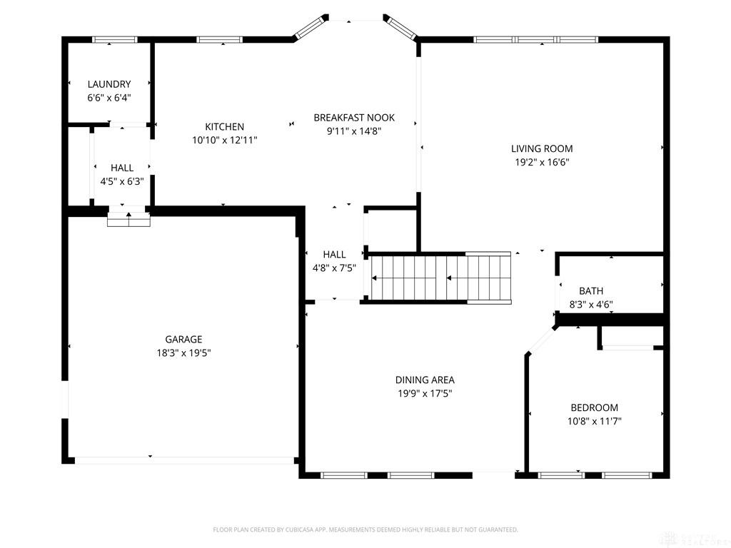
Presenting a modern and spacious home built in 2022, perfectly positioned in the Carriage Trails community. This property boasts over 3,000 square feet of thoughtfully designed living space. The main level features a practical open-concept layout, where the kitchen—equipped with a central island, granite countertops, and ample storage—flows seamlessly into the family room and a sunny morning room. A flexible first-floor room, ideal for a home office or fifth bedroom, is conveniently located near a full bathroom. Upstairs, the primary suite offers a peaceful retreat with a private bathroom and a walk-in closet, complemented by three additional bedrooms and a versatile loft area. The unfinished basement presents a valuable opportunity for customization, already plumbed for a future bathroom. The location combines the tranquility of a well-planned neighborhood with excellent convenience, being just minutes from shopping, dining, Carriage Hill MetroPark, and the Kroger Aquatic Center. This home is also situated within the Bethel Local School District. Don't miss your chance to own a low-maintenance, nearly new home in a fantastic setting.
additional details
- Outside Features Porch
- Heating System Forced Air
- Cooling Central
- Garage 2 Car
- Total Baths 3
- Utilities City Water,Natural Gas,Sanitary Sewer
- Lot Dimensions 7797 SF
Room Dimensions
- Dining Room: 17 x 19 (Main)
- Living Room: 17 x 19 (Main)
- Bedroom: 11 x 10 (Main)
- Laundry: 6 x 6 (Main)
- Kitchen: 12 x 10 (Main)
- Primary Bedroom: 18 x 17 (Second)
- Bedroom: 13 x 12 (Second)
- Bedroom: 13 x 11 (Second)
- Bedroom: 12 x 11 (Second)
- Loft: 20 x 17 (Second)
Great Schools in this area
similar Properties
1018 Hunters Ridge Drive
From the moment you step inside this custom-built ...
More Details
$489,900
5127 Catalpa Drive
Presenting a modern and spacious home built in 202...
More Details
$470,000
4076 Spicebush Drive
Welcome to this exceptional 4-bedroom, 3.5-bath ho...
More Details
$464,900
- Office : 937.434.7600
- Mobile : 937-266-5511
- Fax :937-306-1806
My team and I are here to assist you. We value your time. Contact us for prompt service.
Mortgage Calculator
This is your principal + interest payment, or in other words, what you send to the bank each month. But remember, you will also have to budget for homeowners insurance, real estate taxes, and if you are unable to afford a 20% down payment, Private Mortgage Insurance (PMI). These additional costs could increase your monthly outlay by as much 50%, sometimes more.
Courtesy: Howard Hanna Real Estate Serv (937) 433-1776 Yunus Ibragim
Data relating to real estate for sale on this web site comes in part from the IDX Program of the Dayton Area Board of Realtors. IDX information is provided exclusively for consumers' personal, non-commercial use and may not be used for any purpose other than to identify prospective properties consumers may be interested in purchasing.
Information is deemed reliable but is not guaranteed.
© 2026 Georgiana C. Nye. All rights reserved | Design by FlyerMaker Pro | admin
