Marketing Remarks
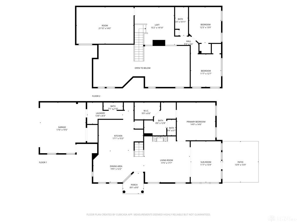
Welcome to Savannah Place at Yankee Trace, where luxury, privacy, and carefree living come together! This 3-bedroom, 2.5-bath home offers 2,410 sq ft of thoughtfully designed space. Step into the wide-open living room with soaring two-story ceilings and a gas fireplace, filled with natural light from abundant windows. The dining room is open to both the living room and a very beautiful kitchen, featuring quartz counters, a gas stove, a large island with seating, and spacious pantries—perfect for cooking and entertaining. An inviting sunroom opens to a pavered patio with a TOP OF THE LINE Nuestra oversized auto wind sensor close awning, offering a shaded retreat with gentle breezes. The first-floor master suite boasts a walk-in closet and an elegant attached bath with tile shower. Upstairs, a loft overlooks the living room and leads to two additional bedrooms, a full bath, and a spacious family room with wet bar. Exceptional soundproofing and insulation between units ensure privacy. Additional features include a 2-car attached garage. Built in Security system with $10 a month monitor option. Enjoy Yankee Trace’s resort-style amenities including two pools, tennis courts, scenic trails, a clubhouse, and vintage gaslight street lighting. Quiet streets, golf, biking, pickleball, or simply relaxing on your patio—everything you need for luxurious, carefree living is right here.
additional details
- Outside Features Patio,Porch
- Heating System Forced Air,Natural Gas
- Cooling Central
- Fireplace Gas,One
- Garage 2 Car,Attached,Opener,Overhead Storage,Storage
- Total Baths 3
- Utilities City Water,Natural Gas,Sanitary Sewer
- Lot Dimensions .1288
Room Dimensions
- Living Room: 18 x 17 (Main)
- Dining Room: 13 x 15 (Main)
- Kitchen: 13 x 11 (Main)
- Laundry: 5 x 9 (Main)
- Primary Bedroom: 15 x 15 (Main)
- Bedroom: 12 x 14 (Second)
- Bedroom: 12 x 13 (Second)
- Loft: 16 x 13 (Second)
- Family Room: 15 x 21 (Second)
Great Schools in this area
similar Properties
9460 Banyan Court
Welcome to Savannah Place at Yankee Trace, where l...
More Details
$539,500
8025 Station House Road
Nearly 3,500 finished sqft offered by this spaciou...
More Details
$530,000
9729 Olde Georgetown Way
Located in the desirable Yankee Trace community, t...
More Details
$529,500
- Office : 937.434.7600
- Mobile : 937-266-5511
- Fax :937-306-1806
My team and I are here to assist you. We value your time. Contact us for prompt service.
Mortgage Calculator
This is your principal + interest payment, or in other words, what you send to the bank each month. But remember, you will also have to budget for homeowners insurance, real estate taxes, and if you are unable to afford a 20% down payment, Private Mortgage Insurance (PMI). These additional costs could increase your monthly outlay by as much 50%, sometimes more.
Courtesy: eXp Realty (866) 212-4991 Andrew Gaydosh
Data relating to real estate for sale on this web site comes in part from the IDX Program of the Dayton Area Board of Realtors. IDX information is provided exclusively for consumers' personal, non-commercial use and may not be used for any purpose other than to identify prospective properties consumers may be interested in purchasing.
Information is deemed reliable but is not guaranteed.
© 2026 Georgiana C. Nye. All rights reserved | Design by FlyerMaker Pro | admin
